65 Walker Street, Downtown Truro, NS
Danielle
This email address is being protected from spambots. You need JavaScript enabled to view it.
902-893-4403
65 Walker Street Apartments in Downtown Truro!!
Nothing available for rent at this time - January 2024.
6 units - all 1 bedroom - Each unit is 15' x 43' = 645 sq. ft. plus balcony.
Great in town location - walk to shopping, restaurants, businesses and Victoria Park. Sobeys is 2 steps away.
Tenant pays utilities.
You will have a heat pump, so you will have Air conditioning too.
We estimate approx $75 a month to NS Power.
Hot water included.
Features:
Fridge and Stove included.
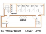
2 washer/2 dryers in basement - coin operated.
Basement storage locker included, 50 Sq. ft.
1 parking space per unit.
Security system with intercom for auto door entry to building.
No elevator, but the first floor has very easy access.
This building will be smoke free. Sorry, no dogs permitted.
Yearly leases, references required.
Building built in 2017.
Floor Plans & Offer to Lease Application below - click to open pdf's.
Residential Rentals
45.365514924239015
-63.272504658895514




